
Topwell Carwash
Máquina de lavagem de rodas de grade DCX-100T
- Carga máxima de 80 toneladas de caminhão
- Máx 3,1m de largura de passagem
- Amplamente utilizado em canteiros de obras, plantas de concreto, minas, fabricação industrial, plantas de triturador, etc.
- Até 80 caminhões lavando por hora
Entre em contato conosco por um preço
Fale com um especialista em máquina de lavar carros
Especificações
Detalhes da máquina de lavagem de rodas de grade
A máquina de lavar de rodas do tipo DCX Series Foundation Foundation é projetada especialmente para limpar vários veículos de construção de carga pesada, resolvendo efetivamente a poluição de veículos de construção na estrada.
Esse tipo de equipamento possui velocidade de limpeza rápida e instalação fácil. É adequado para todos os tipos de lugares, como aterros, canteiros de obras, plantas de concreto, minas, fabricação industrial, plantas trituradas e outros lugares. O tempo médio de lavagem pode lavar de 60 a 80 veículos por hora.
O esgoto após a lavagem do caminhão retornará ao poço da fundação e será reutilizado depois que a lama for descarregada automaticamente através do mecanismo de descarga de lama, sem a necessidade de adicionar água limpa, economizando muitos recursos hídricos. Esta série de máquinas de lavagem de rodas é adequada para locais relativamente fixos. Se a máquina de lavar rodas precisar alterar o local de local para local, é necessário usar apenas um guindaste para levantar o equipamento do poço da fundação.
| Item | Parâmetro |
|---|---|
| Modelo | DCX-100T |
| Tamanho do equipamento (mm) | 2250 (W) × 5350 (L) × 2100 (H) |
| Largura do caminhão máximo (mm) | 3100 |
| Peso | 3200kg |
| Lavar o caminho | Dirija através do tipo |
| Lavar para | <80 toneladas de caminhão de engenharia, veículo de transporte |
| Começar | Início de detecção mecânica |
| Lave a pressão | 3kg/cm² |
| Tempo de lavagem | 60–80 segundos/ veículo |
| Água usada | 10L/veículo |
| Máquina de energia total | 16kW |
| Material | Estrutura galvanizadora com grade de aço inoxidável |
| Esgoto | Remova a lama automaticamente |
| Fonte de energia | 380V, 50Hz, 3p; Aceitar o costume |
| Bico lateral | Φ4.2, 42pcs |
| Tubo de spray de água | DN50 tubo galvanizado |
| Tubo de água submersível de bomba | DN65 tubo galvanizado |
| Direção de descarga de lama | Lado esquerdo/direito, depende do site do cliente |
Principais características
● descarga automática de lama e reutilização da água
● Pode ser adaptado a diferentes locais de trabalho, como plantas de mineração, plantas de pedreiras, plantas de triturador, aterros, etc., fazem a transição facilmente de local para local
● Importar componentes elétricos de fabricantes conhecidos para garantir a segurança e a confiabilidade
● Produto de patente, resolva efetivamente a poluição de veículos de construção em estradas urbanas
● Estrutura galvanizada profissional com grade de aço inoxidável, a vida útil pode atingir 8 a 10 anos
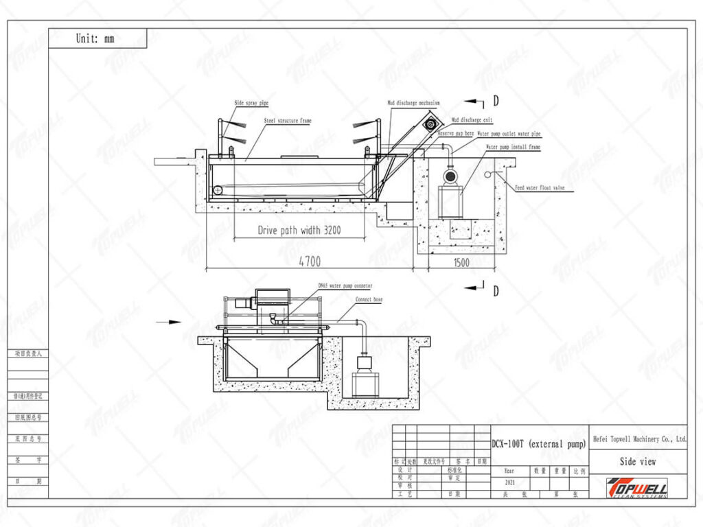
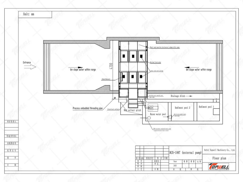
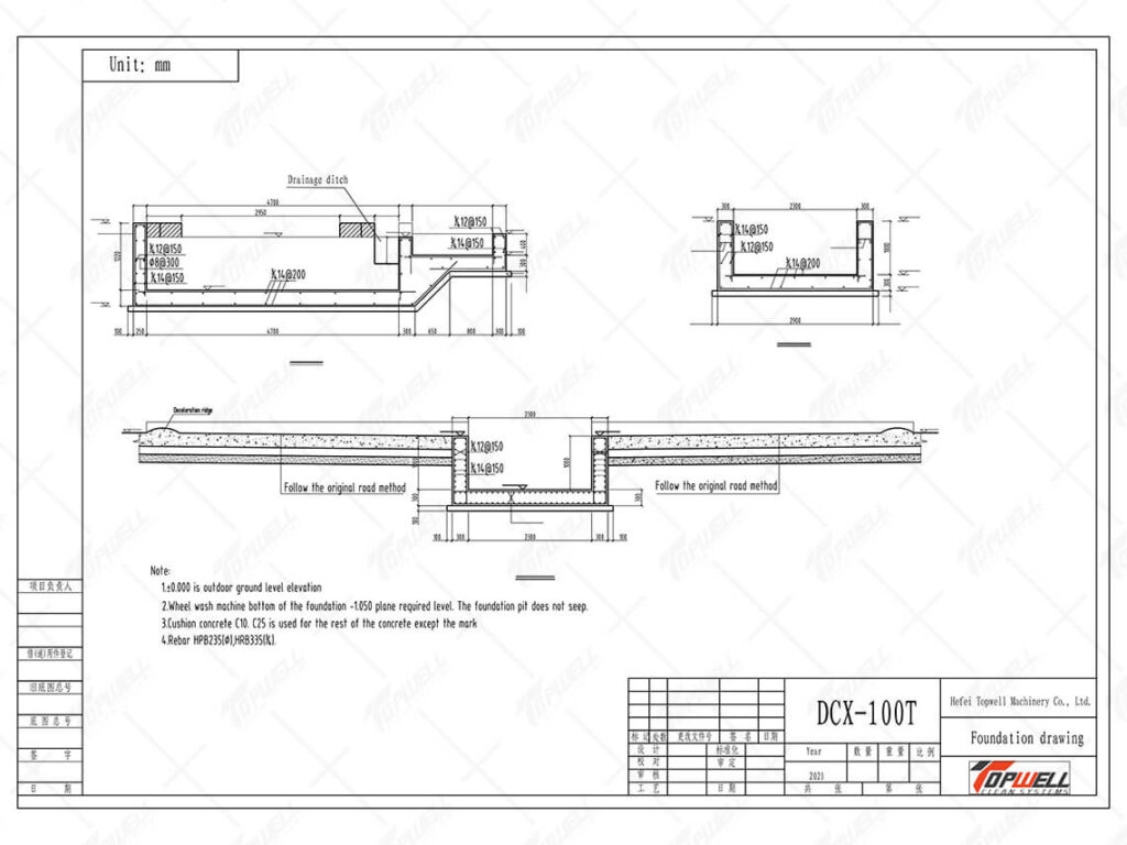
Desenho de quadros
Os detalhes que você pode se importar








Lavagem de vídeo
Arruela de roda de grade
Clientes confiáveis
Mais e mais clientes optam por confiar e cooperar com Topwell

Serviços
Etapas de personalização
Discuta suas necessidades
Solução personalizada
Fabricação de precisão
Instalação e treinamento
Entre em contato conosco por um preço
Fale com um especialista em máquina de lavar carros
Guia de perguntas frequentes
Máquina de lavagem de rodas de grade DCX-100T
Como resolver o problema de instalação?
O equipamento é carregado em um recipiente de 20 pés, enviando como um conjunto completo. Quando chega ao local, ele é levantado no poço de fundação pré-preparado usando um guindaste e pode ser usado após ser conectado à água e à eletricidade.
Como resolver o problema pós-venda após a instalação do equipamento?
Atualmente, o WhatsApp e outros softwares de mídia social estrangeira não podem ser abertos na China sem uma VPN. Portanto, após a cooperação, sugerimos que os clientes baixem o aplicativo WeChat. Topwell criará um grupo separado para cada cliente, que inclui o vendedor e o técnico da fábrica. Se você tiver algum problema pós-venda, basta descrever o problema claramente e enviar fotos e vídeos relevantes para o grupo. Nossos técnicos o guiarão e fornecerão uma solução imediatamente.
Quanto tempo dura a garantia da máquina?
Garantia de um ano depois que o cliente recebeu o equipamento.
Quanto tempo dura o tempo de entrega?
380V padrão, 50Hz leva 10 dias; A tensão e a frequência não padrão precisam de 40 dias.




