
Topwell Carwash
Máquina de lavagem de carro de túnel automático
- Até 60 carros/h A capacidade de lavagem pode encontrar sua loja de carros com mais de 500 carros lavando diariamente.
- Diferentes configurações de túnel atendem a diferentes tamanhos e orçamentos de terras.
- Suporte a personalização em funções de lavagem de carros
Entre em contato conosco por um preço
Fale com um especialista em máquina de lavar carros
Especificações
Detalhes da máquina de lavagem de carro de túnel automático
Entre os muitos modelos de lavagem de carros, a alta eficiência da máquina de lavar carros de túnel torna o cliente muito amado. Sob a condição de lavagem contínua, ele pode lavar 50 a 60 veículos por hora. O tipo de carro não é afetado. Crades, SUVs e pickups podem ser limpos de mais de 3 veículos.
Amplamente utilizado em: lojas de revendedores de carros, oficinas de reparo de automóveis, postos de gasolina, cruzamentos de rodovias, estacionamentos grandes e cruzamentos com tráfego intenso.
Para atender aos requisitos de diferentes sites e orçamentos de clientes, 5 modelos padrão fornecem uma variedade de opções. O número de escovas e o número de sopradores determina o comprimento e o preço do equipamento. No que diz respeito ao mercado de exportação, o modelo de 11 salmões tem as vendas mais altas, porque equipado com dois pincéis horizontais da marca Italiana Favagrossa. Verifique os parâmetros dos 5 modelos abaixo.
| Item | TX-380AF | TX-380A | TX-380BF | TX-380B | TX-380G |
|---|---|---|---|---|---|
| Pincéis e secador | 11 escovas 7 secador | 11 escovas 4 secador | 9 escovas 7 secador | 9 escovas 4 secador | 7 escovas 4 secador |
| Tamanho do quadro, L*W*H (cm) | 1520*380*310 | 1360*380*310 | 1280*380*310 | 1115*380*310 | 1035*380*310 |
| Comprimento do transportador (cm) | 1576 | 1420 | 1336 | 1176 | 1094 |
| Largura da plataforma Guide (CM) | 79 | ||||
| Min Tamanho da instalação, L*W (cm) | 2400 × 500 | 2200 × 500 | 2120 × 500 | 1960 × 500 | 1880 × 500 |
| Tamanho máximo de lavagem, w*h (cm) | 200 × 200 | ||||
| MAX CARCASEIRA DE CARRO (CM) | 330 | ||||
| Padrão de potência | 380V, 50Hz, 3p. Aceitar o costume. | ||||
| Poder total | 55kW | 35kW | 55kW | 30kW | 30kW |
| Tubo de abastecimento de água | TN40 | ||||
| Consumo de água | 160 L por carro | ||||
| Consumo de eletricidade | 0.8kw/h/carro | 0.8kw/h/carro | 0.8kw/h/carro | 0.5kW/h/carro | 0.5kW/h/carro |
| Velocidade de lavagem | Até 60 cph | ||||
| Brush da roda da Itália | 2 | 2 | 2 | 2 | 2 |
| Escova de saia curta | 4 | 4 | 4 | 4 | 2 |
| Escova superior | 1 | 1 | 1 | 1 | 1 |
| Big lateral pincel | 2 | 2 | 2 | 2 | 2 |
| Escova lateral da rodada | 2 | 2 | 2 | 2 | 2 |
| Secador de contorno | 5.5kW*2pcs | 5.5kW*2pcs | 5.5kW*2pcs | 5.5kW*2pcs | 5.5kW*2pcs |
| Secador lateral | 3kW*2pcs | 3kW*2pcs | 3kW*2pcs | 3kW*2pcs | 3kW*2pcs |
| Principal do tipo Q do tipo USA | 5.5kW*3pcs | / | 5.5kW*3pcs | / | / |
| Água HP | 550 psi | ||||
| Bomba de água | 70 psi | ||||
| Sistema de espuma (por bomba de dosagem) | 1 | ||||
| Sistema de cera (por bomba de dosagem) | 1 | ||||
| Luz do sinal | 2 | ||||
| Limpeza do material rodante | Equipado, com bico 5pcs | ||||
| Sistema de reciclagem de água | Opcional | ||||
| Placa de aço-telhado | Opcional | ||||
| Espessura de vidro lateral-10 mm | Opcional | ||||
Principais características
● Toda a máquina é galvanizada, com processo de pintura de dupont, mais resistente à corrosão e durável
● Adote tecnologia avançada e design modular, que podem ser combinados de acordo com diferentes necessidades
● Importar componentes elétricos de fabricantes estrangeiros conhecidos para garantir a segurança e a confiabilidade, também use peças de design próprio para garantir que a máquina de lavar de carro em execução
● Sistema de auto-detecção de falha em tempo real
● O uso de uma escova especial de lavagem de carros de alta qualidade, material de espuma EVA Unsking Sandick para proteger a tinta do carro. Vida mais longa pode atender a lavagem 900000CARs
● Se a máquina for instalada ao ar livre, cada lado do quadro poderá montar vidro, atraindo clientes para assistir ao processo de lavagem de fora
● Espelho de aço inoxidável espelhado na entrada, é mais seguro colocar a roda no transportador e entrar na máquina
● Tela de exibição de operação de toque de alta brilho 10 ', diferentes idiomas podem ser suportados
● O sistema de pré-lavagem de água HP é padrão para toda a série, enxaguar a lama e a areia no corpo do carro antes de limpar a escova
● Estatísticas completas de dados, recorde lavagens diárias de carros e lavagens totais de carros
● Sistema de blindagem de falhas em tempo real, blindagem única de pontos de falha, reduzindo as perdas de espera de manutenção
● Sistema de transportador livre de manutenção opcional, o mecanismo de transmissão do veículo é mais estável e uma vida mais longa
● O novo sistema de secagem de ar do tipo Q do Q pode escolher o modo fixo, balanço e rastreamento
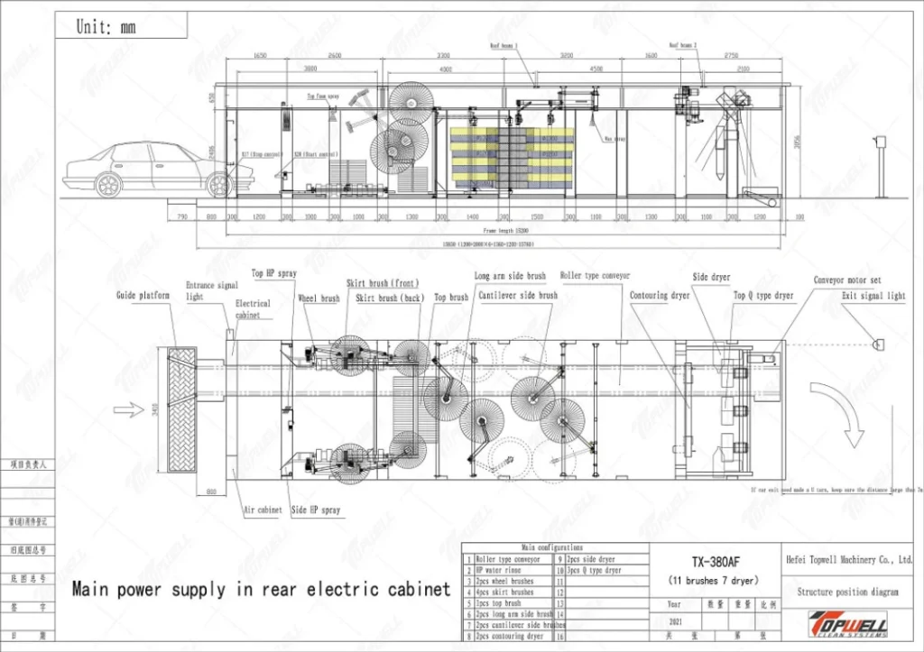
Desenho de quadros
Os detalhes que você pode se importar








Lavagem de vídeo
Lavagem de carro de túnel expresso no Japão
Mais opções
Funções ou configurações opcionais
Máquinas de lavar carros padronizadas podem não ser capazes de atender aos hábitos locais de mercado e de limpeza locais dos clientes, para que a Topwell também possa personalizar equipamentos para os clientes, desde que sua ideia seja viável em nossa opinião e não afetará a estabilidade do equipamento, então podemos seguir completamente sua idéia e a personalização da máquina de lavar carros pertence à sua loja de lavagem de carros.

Soluções de pré-lavagem de precisão
Apelo visual aprimorado com espuma de lava


Estruturas de túneis personalizados para mercados globais
Limpeza sem ponto com sistemas de água RO


Sistemas de reciclagem de água ecológicos
Clientes confiáveis
Mais e mais clientes optam por confiar e cooperar com Topwell

Serviços
Etapas de personalização
Discuta suas necessidades
Solução personalizada
Fabricação de precisão
Instalação e treinamento
Entre em contato conosco por um preço
Fale com um especialista em máquina de lavar carros
Guia de perguntas frequentes
Máquina de lavagem de carro de túnel automático
Q1: O que é uma máquina de lavagem de carro de túnel automático?
R: Uma máquina de lavagem de carro de túnel automático é um sistema de limpeza de veículos de túnel totalmente automatizado. Ele usa uma correia transportadora para mover veículos constantemente através de um túnel de lavagem fechado, completando todo o processo-preenchimento de presos, aplicação de espuma, jatos de água de alta pressão, esfrega de escova, depilação e secagem-sem intervenção manual. Ideal para demandas de lavagem de carros de alta eficiência em postos de gasolina, estacionamentos e ambientes semelhantes.
P2: Que vantagens a máquina de lavagem de carros de túnel automático oferece sobre a lavagem tradicional de carros?
R: Esta máquina integra sistemas de sensor inteligente e design modular, oferecendo três vantagens principais: 1) 300% de maior eficiência, processando mais de 500 veículos diariamente; 2) reduz o consumo de água em mais de 40% com um sistema de reciclagem e purificação de água embutido; 3) suporta programas personalizáveis (por exemplo, limpeza de material rodante, cuidados com revestimento). Seus pincéis flexíveis e braços de spray seguindo o contorno se adaptam a sedãs, SUVs e outros tipos de veículos, eliminando riscos de arranhões.
Q3: A máquina de lavagem de carro de túnel automático danificará a pintura do veículo?
R: Não. Equipado com sensores de pressão de alta precisão e sistemas de segurança sem contato, a máquina usa escovas de microfibra anti-estática e ajusta dinamicamente a pressão do braço de pulverização. Combinada com a tecnologia de rastreamento de contorno de 360 °, garante limpeza completa enquanto evita arranhões na superfície. SGS testado e certificado, está em conformidade com os padrões de segurança da ISO 9001 para atendimento à superfície do veículo.
Q4: Como manter a máquina de lavagem de carros de túnel automático?
R: A máquina possui um módulo de alerta autodiagnóstico e monitoramento remoto baseado em nuvem para consumíveis (por exemplo, desgaste da escova, vida útil do filtro). A manutenção de rotina inclui limpeza semanal de tanques de sedimentos e reabastecimento mensal de detergentes especializados. A manutenção anual cobre a lubrificação do sistema de acionamento e da calibração do sensor. O aplicativo complementar fornece lembretes de manutenção, reduzindo os riscos inesperados de quebra em 90%.




